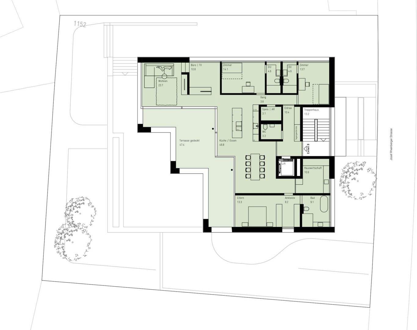
Obergeschoss-Wohnung
Oberhalb der Rebberge der fürstlichen Hofkellnerei befindet sich eines der exklusivsten Wohngebiete von Vaduz und Liechtenstein. In dieser zentralen aber doch ruhigen Lage, nahe dem Ortskern entsteht in optimaler Ausrichtung das Projekt «Castellan» als exklusives Zuhause das höchsten Wohnkomfort anbietet.
Rundgang
Kontakt
Wir freuen uns auf Ihre Kontaktaufnahme und Sie schon bald persönlich kennenzulernen.
Kontakt
